Настенная вентиляционная решетка с клапаном расхода воздуха РАГ-НГ+Р 400x150
- Добавить в избранное
- Задать вопрос
- Добавить в избранное
- Задать вопрос
Настенная вентиляционная решетка с клапаном расхода воздуха РАГ-НГ+Р 400x150
Описание
Скачать описание
Настенная вентиляционная решетка с клапаном расхода воздуха РАГ-НГ+Р
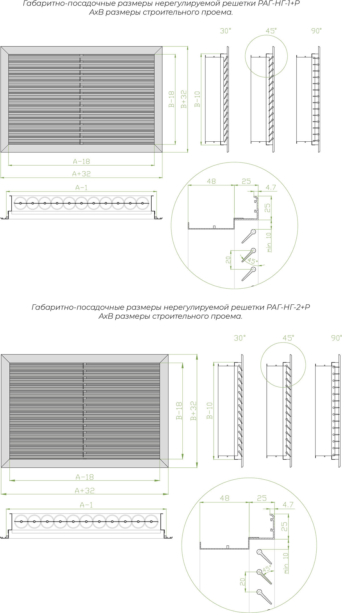
Однорядная нерегулируемая решетка РАГ-НГ+Р с клапаном расхода воздуха (КРВ) используется в приточно-вытяжной вентиляции и системах кондиционирования воздуха и предназначена для установки в стены, воздуховоды и потолочные проемы. Решетка с КРВ предназначена для регулирования объема подаваемого воздуха.
Решетка имеет рамку и горизонтально расположенные каплеобразные жалюзи, которые могут быть зафиксированы под углом 30˚, 45˚ и 90˚ специальной пластиной с вырезами, что исключает провисание жалюзи и повышает эстетический вид изделия. Жалюзи возможно расположить по типу 1 во внутреннюю сторону (РАГ-НГ-1) и по типу 2 во внешнюю сторону (РАГ-НГ-2).

КРВ представляет собой рамку с установленными в неё лопатками. Положение лопаток регулируется при помощи ручки. Изменение положения лопаток позволяет изменять площадь свободного сечения решетки, тем самым регулируя объем подаваемого воздуха.
Решетки данного вида включают в себя изделия стандартных типоразмеров, а также возможно изготовление любых размеров с шагом 1 мм. Минимальные рекомендуемые размеры 150х100 мм. Максимальные рекомендуемые размеры 2900х2000 мм.
При изготовлении решеток используется запатентованный алюминиевый профиль АДЗ1 (ГОСТ 22233-2018). При производстве КРВ используется оцинкованная сталь для рамки, алюминиевый профиль для лопаток и пластиковые комплектующие (шестеренки и втулки). По умолчанию решетки окрашены полиэфирной порошковой краской белого цвета RAL 9016. По запросу возможно покрытие в другие стандартные цвета по шкале RAL. КРВ поставляется без покрытия.




Характеристики
-
Место примененияВ стены
-
ПроизводительООО "ВЕНТРЕШЕТКИКОМ"
-
Вид решеткиОднорядные
-
Способ монтажаВстраиваемая
-
РегулировкаРегулируемая
-
ФормаПрямоугольные
-
МатериалАлюминий
-
КонструкцияНеразборная
-
Предоплата100%
-
БрендTHE GRILLES
Особенности
Чертеж

Отзывы
Отзывов нет. Станьте первым, кто оставит отзыв!
Пример заказа

- Похожие товары
- Хиты продаж
- Распродажа
- Популярное
Способы монтажа
Мы располагаем огромными возможностями и выбором
Получите консультацию
Оставьте свои контактные данные и мы вам перезвоним!